W Krakowie na ulicy Dekerta 15 powstanie nowy park kieszeniowy. 25 października 2021r. zaprezentowano koncepcję zagospodarowania parku. Teren położony jest pomiędzy torami, a zabudową mieszkaniową w miejscu pozostałości po budynku, który kiedyś pełnił rolę koszar pionierów kawalerii.
Nowy park kieszeniowy w Krakowie szansą dla zniszczonej zabudowy
- Zniszczony budynek porośnięty jest licznymi pnączami, a w jego wnętrzu wyrastają drzewa. Postanowiono zatem wykorzystać istniejący potencjał budynku i stworzyć park kieszeniowy we wnętrzu budynku.
- Koncepcja zagospodarowania budynku przy ulicy Dekerta zakłada stopniowe zanikanie obiektu w tkance zieleni.
- Projekt zakłada, że część budynku zostanie przeznaczona na cele społeczne, a część będzie stanowiła miejsce przyjazne dla zapylaczy. Powstaną łąki kwietne i rabatki kwiatowe.
Nowy Park kieszeniowy sposobem na zniszczony budynek stanowiący element kultury Krakowa
Na ulicy Dekerta znajdowały się koszary dla plutonu pionierów kawalerii, które wywodziły się z obiektów cegielni Wodeckiego, wykupionej przez wojsko w roku 1852. Obiekt był niewielki, składał się z parterowego budynku mieszkalnego, stajni dla koni, budynku magazynowego mieszczącego skład narzędzi saperskich oraz małych budynków pomocniczych. Na tyłach stajni znajdowała się otwarta ujeżdżalnia. Koszary wyróżniały się pięknym, komponowanym ogrodem zamykającym ich teren od wschodu.
W latach 80. XX wieku budynek na ulicy Dekerta 15 był przystankiem dla polskich muzyków, którzy szykowali się do tras koncertowych. Z tych bardziej znanych twórców można wymienić Grzegorza Ciechowskiego, muzyków grupy Maanam, czy Lady Punk.
Obecnie budynek należy do Zarządu Budynków Komunalnych w Krakowie i niestety stał się noclegownią dla osób bezdomnych. Stan budynku pozostawia wiele do życzenia.
Niestety obecny stan budynku nie pozwala na jego renowacje. Po przeprowadzeniu ekspertyz i szczegółowej inwentaryzacji uznano, że budynek nadaje się wyłącznie do rozbiórki. Jego odbudowa wiązałaby się ze zbyt dużymi kosztami.
Powstanie park kieszeniowy we wnętrzu budynku
Zniszczony budynek porośnięty jest licznymi pnączami, a w jego wnętrzu wyrastają drzewa. Postanowiono zatem wykorzystać istniejący potencjał budynku i stworzyć park kieszeniowy we wnętrzu budynku.
Zobacz tutaj, gdzie powstanie park kieszeniowy w Krakowie na Geoportalu OnGeo.
Koncepcja zagospodarowania budynku przy ulicy Dekerta zakłada stopniowe zanikanie obiektu w tkance zieleni. Przyroda w końcu upomni się o swoje.
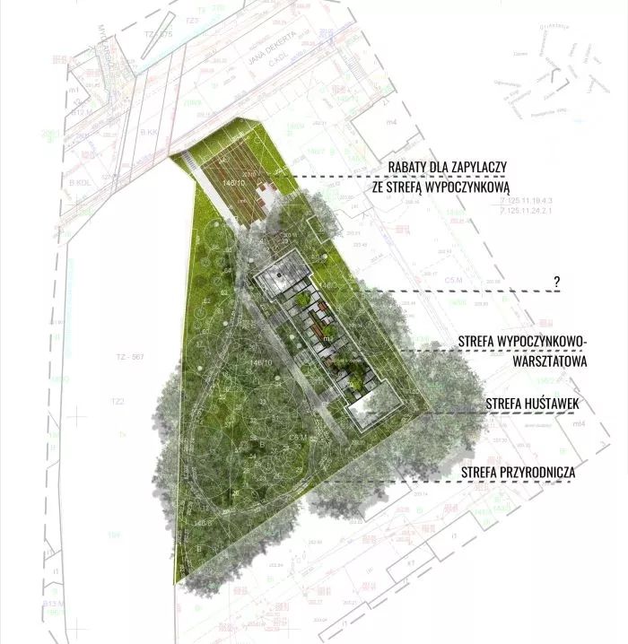
Nowy projekt zakłada, że część budynku zostanie przeznaczona na cele społeczne. W części społecznej zostanie zamontowany duży stół warsztatowy oraz meble miejskie. Będzie to miejsce przeznaczone m.in. dla dzieci i młodzieży szkolnej. Na terenie parku kieszeniowego mają zawisnąć również huśtawki.
Obszar parku będzie również stanowił przyjazne środowisko dla zapylaczy dzięki zasadzonej rabatce z kwiatami i łące kwietnej.
Poniżej prezentujemy plan koncepcji zagospodarowania parku kieszeniowego


Redaktorka w OnGeo.pl. Analityczka danych i specjalistka rynku nieruchomości.
Zdiagnozuj działkę.
Wyszukaj na mapie!
- Zakopane śmieci pod działką i czyste rejestry. Co ujawniły archiwalne zdjęcia lotnicze
- Metro Polska: rząd analizuje budowę metra w 10 największych miastach. Tunele mają też chronić mieszkańców
- Co piąta gmina bez strategii rozwoju. Do 1 lipca obowiązek, a 457 samorządów nie zaczęło prac
- Program Mirek 2026: do 8 000 zł na deszczówkę dla właścicieli domów
- Masz w domu książeczkę mieszkaniową z PRL? Państwo wypłaci ci nawet 20 tysięcy złotych
- KOD ZNIŻKOWY 7% na zakup Raportu o Terenie OnGeo.pl
-
DARMOWA CHECK-LISTA:
Co sprawdzić przed zakupem działki?
70 PYTAŃ, na które musisz odpowiedzieć zanim kupisz działkę!
-
DARMOWA CHECK-LISTA:
Jakie informacje powinno zawierać idealne ogłoszenie sprzedaży działki?